伏見町歴史浪漫

〜福山城〜

福山城遺構と伏見町

伏見町の位置

伏見町にある遺構

 

現在の伏見町福山城遺構の位置図

伏見町にある福山城遺構

 

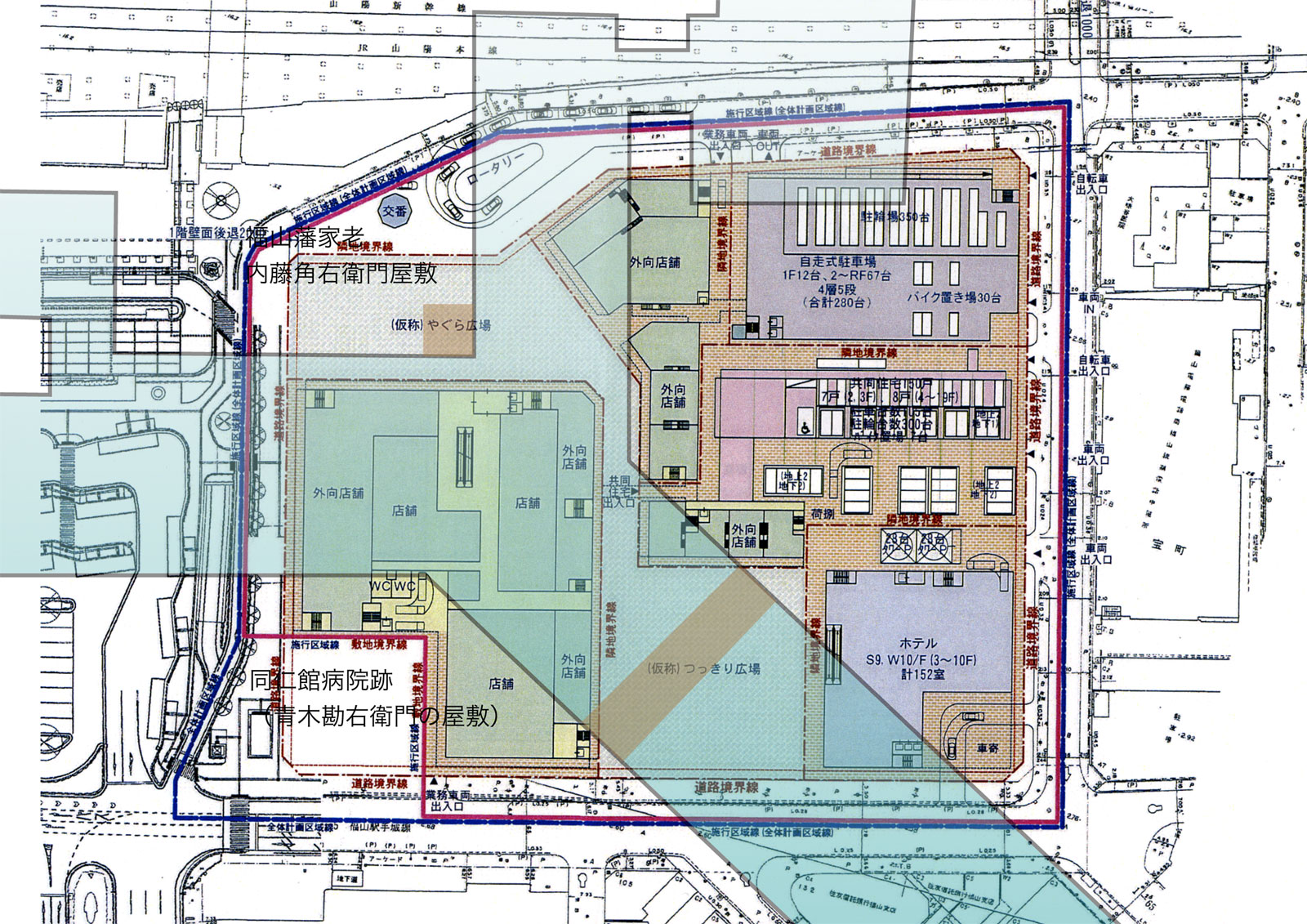
2011年6月伏見町再開発事業基本計画案と遺構

伏見町再開発計画と遺構

※福山市伏見町市街地再開発事業は2016年に計画中止されています。

 

2012年3月伏見町再開発事業基本計画案と遺構

※福山市伏見町市街地再開発事業は2016年に計画中止されています。

 

伏見町に位置する二重櫓

伏見町にある二重櫓の位置

伏見町にある二重櫓

水野藩時代の伏見町(PDF)

阿部藩時代の伏見町(PDF)

 

伏見町歴史浪漫トップへ戻る
戻る


※本ページ内に掲載の写真など画像の無断転載を禁じます。

copyright©2007-2016 yukio yasuhara